Расчет площади прямоугольных стен
Прямоугольники, как и квадраты, обладают четырьмя прямыми углами, поэтому их еще называют четырехугольниками. Различие в размерах сторон. Прямоугольник имеет по две длинные и две более короткие стороны. Всякий квадрат является прямоугольником тоже, но у квадрата все стороны одинаковой величины. Это можно увидеть на рисунке.

Рисунок 1 Прямоугольник и квадрат
Для комнаты прямоугольной формы

Рисунок 2 Прямоугольная комната со всеми стенами
Если
L = 2,8м
M = 5,6м
H = 2,5м
то площадь всех стен составит произведение периметра на высоту:
(2,8+2,8+5,6+5,6)х2,5м=42метра2
Для квадрата еще проще, так как у него длины всех сторон одинаковые L =M = 4,6м, например. Тогда площадь всех стен равна 4,6х4×2,5=46м2 или по периметру (4,6+4,6+4,6+4,6)и умножить на высоту2,5м, получаем те же 46м2.
Получается, что совсем не сложно посчитать площадь стен в комнате. Эти вычисления нам понадобятся для подсчета количества метража обоев, плитки, панелей и прочих отделочных материалов.
Общие сведения
В ряде Европейских стран и в Индонезии площадь земельных участков измеряют в арах
Площадь — это величина геометрической фигуры в двумерном пространстве. Она используется в математике, медицине, инженерных и других науках, например, в вычислении поперечного сечения клеток, атомов, или труб, таких как кровеносные сосуды или водопроводные трубы. В географии площадь используются для сравнения размеров городов, озер, стран и других географических объектов. При расчетах плотности населения также используется площадь. Плотность населения определяется как количество людей на единицу площади.
Предлагаем ознакомиться Карточка партнера предприятия
Как рассчитать площадь комнаты – пошаговая инструкция
При расчете площади нужно знать длину, ширину и высоту комнаты
Можно, конечно, заглянуть в техническую документацию дома и посмотреть в ней все нужные характеристики. Но, во-первых, там нередко бывают ошибки, во-вторых, иногда проще вычислить всё самостоятельно, чем найти документы.
Для проведения подсчётов нам понадобятся определённые инструменты, большинство из которых можно запросто найти в каждом доме. А именно:
- рулетка;
- карандаш;
- бумага для записей;
- калькулятор (можно использовать калькулятор, который размещён на нашем сайте);
- трезвость ума и ясность мыслей.
Пол
Чтобы высчитать квадратуру пола в прямоугольной или квадратной комнате, необходимо узнать её длину и ширину.
Проводить замеры лучше у основания стен, а для этого желательно отодвинуть или вынести всю мебель. Но, если такая процедура в ваши планы не входила, можно мерить и по центру. Главное при этом, чтобы воображаемая линия, по которой будет производиться измерение, располагалась под углом в 90° к стене.
После того как данные замеров получены и проверены, их нужно перемножить по формуле , где S — площадь в квадратных метрах, a и b — длина и ширина, соответственно.
Если к основному помещению прилегает ниша или какое-нибудь другое — его площадь необходимо вычислить по тому же алгоритму, и результаты приплюсовать к площади комнаты. Если есть различные выступы, которые занимают его часть — их также следует измерить и полученный результат вычесть из общего.
С квадратами и прямоугольниками всё просто. А как посчитать S комнаты, если она имеет неправильную форму? Здесь придётся применить логическое мышление, и немного вспомнить школьный курс алгебры и геометрии. Но давайте по порядку.
Если помещение неправильной формы
Постарайтесь мысленно или на бумаге разделить комнату на простые элементы (квадраты, прямоугольники, треугольники). Далее, нужно будет высчитать размеры каждого из них, и результаты сложить.
- для треугольника — . Где a — длинна основания треугольника, b — высота, проведённая от вершины к основанию;
- для круга — . Где 3,14, r — радиус круга (чтобы узнать радиус — найдите с помощью рулетки самое длинное расстояние между стенами и разделите его на 2);
- для полукруга — (буквенные обозначения совпадают с предыдущим пунктом).
Как оказалось, и в таком случае ничего сложного нет. Главное, тщательно проверять результаты замеров, чтобы в расчёты не закралась случайная ошибка, и их не пришлось производить заново.
И ещё. Если вы хотите произвести монтаж тёплого пола, не забудьте отдельно вычислить площадь, которую занимает мебель, и вычтите её из общего значения для помещения.
С полом мы разобрались. Но при подготовке, допустим, к переклеиванию обоев это вам мало чем поможет. Нужно будет узнать точное количество квадратных метров, которое занимают стены.
Стены
Площадь каждой отдельно взятой стены можно высчитать так же, как и квадратуру пола. Только теперь вместо ширины помещения нужно будет измерить её высоту. Множим длину стены на высоту и получаем необходимый нам результат в квадратных метрах.
Измерение высоты лазерной рулеткой
А можно вычислить и для всех стен сразу. Для этого вам понадобится узнать периметр пространства. Возьмите рулетку и измерьте длину каждой стены, результаты сложите — это и будет периметр. Остаётся измерить высоту комнаты и воспользоваться следующей формулой: , где p — периметр, а h — высота.
Теперь необходимо разобраться с оконными, дверными и прочими проёмами, присутствующими в помещении.
Точнее, рассчитать площадь каждого из них (по формулам, представленным выше, в зависимости от формы проёма), результаты суммировать и вычесть из общего количества.
Существует также ряд общих рекомендаций по проведению замеров.
Пример расчета площади с участком в форме сегмента
Площадь прямоугольника:
S1 = 5.00 × 2.00 = 10.00 м²
Находим площадь сегмента на основании радиуса и длины хорды (в нашем случае длина хорды, вполне очевидно, равна ширине помещения).
S2 = 2.91² × arcsin (5/(2×2.91)) – 0.25 × 5.0 × √ (4 × 2.91² — 5.0²) =
= 5.0.м²
(При вычислении на калькуляторе обязательно установите единицу углового измерения – радиан. При подсчёте в Excel радианы установлены по умолчанию)
Просто ради интереса – та же площадь, но через высоту сегмента:
S2 = 2.91² × arccos (1.5 / 2.91) – 1.5 × √ (2.91² — 1.5²) = 4.99 м²
Полученная разница в 0,02 м² – просто результат округлений длинных дробных чисел. Очевидно, что здесь вполне можно принять среднее значение в 5,0 м²
Итого, общая площадь помещения:
Σs = 10.00 + 5.00 = 15.00 м²
Определение площадей стен и потолка
Пол в комнате – не единственная плоскость, площадь которой необходимо знать. Часто для вычисления количества необходимых строительных или отделочных материалов, для определения объемов работ приходится находить площадь стен и потолка.
Законы геометрии одинаковы для всех двухмерных фигур, так что ничего нового их области математики сказано не будет. Есть только некоторые нюансы:
Стены
Казалось бы, чего проще: площадь стены – это ее длина, умноженная на высоту. Стало быть, общую площадь поверхности стен в комнате можно найти произведением периметра помещения на высоту.
Да, это справедливо, но только лишь для комнат, у которых высота потолка у стен одинакова в любой точке. А, например, в мансардных помещениях стена может быть трапециевидной или даже треугольной
Поэтому, на это стоит обратить внимание. Как найти площадь треугольника или трапеции – повторять не будем
Далее – из общей площади стены необходимо вычесть оконные или дверные проемы. Ничего сложного – делаются замеры по внешней поверхности коробок и рам, и производится соответствующий расчет, в зависимости от геометрической фигуры.

Подготовка очень грязных изделий к стирке
Рекомендуется перед удалением пятен с кухонного полотенца предварительно замочить его. Замачивание необходимо в случаях, когда изделие очень грязное. Оно также рекомендовано при наличии застарелых пятен.
Замачивать изделия можно в содовом или солевом растворах. Первый подходит для белых полотенец. Рекомендуется смешивать 5 больших ложек соды с 25 г стирального порошка. Смесь заливается кипятком.
Необходимо выдерживать вещь в содовом растворе 4-5 часов. Сода хорошо убирает зловонный запах.
В солевом растворе лучше замачивать цветные изделия, от соды они теряют цвет. Для раствора берется литр горячей воды и большая ложка соли. В нем необходимо замачивать полотенце в течение часа.
Если имеются застарелые пятна, то лучше замочить вещь в растворе на основе литра кипятка и 15 г пятновыводителя.
Предварительно рекомендуется нанести пятновыводитель на старое загрязнение и подождать 15 минут. Далее нужно поместить вещь в горячий раствор и замачивать в нем пару часов.
Калькулятор расчёта площади комнаты, расчет площади пола и потолка
Дальше высчитывается их квадратура, а сумма результатов – площадь пола, то есть потолка.
Приведем пример расчета Г-образной комнаты. Имеем длинный отросток с размерами: длина – 3 метра, ширина — 1 метр. Короткий отросток имеет такие размеры: длина – 2 метр, ширина – 1 метр.
Получаем такие расчеты: 3 х 1 + 2 х 1 = 3 + 2 = 5 м2.
Расчет помещения неправильной формы
Не редкость в конструкции помещений – выступы, тупые углы и прочие сложности для того, чтобы посчитать площадь поверхности. Но мы не сдаемся. Сделать все можно в два этапа.
Если комната имеет уступы, сначала рассчитывается площадь пола. Дальше нужно рассчитывать уступы, определяя величину каждого. Для этого высота уступа умножается на его длину. К полученному ранее значению площади следует добавить квадратуру всех уступов.
Допустим, есть пространство длиной 3 метра, а шириной 2 метра, выступы (3 штуки) – 1 метра и 0,5 метра соответственно. Тогда получаем такой расчет: 3 х 2 + 3 х (1 х 0,5) = 6 + 3 = 9 м2.
Если же помещение имеет наклонный потолок, размещенный под определенным углом к полу, нужно измерить длину стороны, которая идентичная и у пола, и у потолка, а также наклонной. Данные нужно перемножить. К примеру, если длина потолка составляет 3 метра, а наклонная сторона – 1 метр, получаем такого вида формулу: 3 х 1 = 3 м2.
Встречаются в наших реалиях трапециевидные помещения. В этом случае рассчитывать площадь стоит несколько по иной формуле: ½ х (a + b) х h,
где h – высота, измеренная как расстояние между параллельными сторонами, проведенная перпендикулярно; a, b – параллельные стороны.
К примеру, если две параллельные стороны потолка имеют длину 5 и 3 метра соответственно, а перпендикулярное расстояние – 4 метра, получаем такие расчеты: ½ х (5 + 3) х 4 = 16 м2.
Как итог, если нужно подсчитать квадратуру сложного помещения, следует пользоваться методом дробления, то есть делить площадь на понятные части, чтобы найти их площадь, а потом суммировать полученные результаты. И единственное, что остается, — правильно выполнить измерения и вычисления, не допустив ошибок.
Словом, для облагораживания квартиры или дома с экономической выгодой следует закупать материалы в соответствии с имеющимися габаритами. Выполнив правильные расчеты, определив необходимое количество отделочного материала, добавив десять процентов к значению, можно быть уверенными в том, что этого будет достаточно для реализации задуманного. Стоит только отметить, если комната имеет множество выступов, ниш и прочих нестандартных элементов, следует приобрести немножко больше материала, поскольку подобные нестандартные размеры чреваты перерасходом материала. И тогда итоговая сумма затрат на ремонт будет объективной, а не завышенной.
Ремонт в квартире – мероприятие не из дешевых. Поэтому, прежде чем приступить к отделке и обустройству того или иного участка в помещении, нужно правильно рассчитать его площадь. Это позволит запастись всем необходимым в достаточном количестве – не приобретая лишнего, и не проявляя чрезмерную экономию, которая может привести к нехватке стройматериалов. Ниже речь пойдет о том, как правильно вычислить площадь потолка в комнате.
Как посчитать площадь комнаты в квадратных метрах
Необходимость в расчете площади возникает зачастую только во время ремонтных работ, строительства или при смене мебели. Практически все строительные материалы (например напольное покрытие) исчисляется в квадратных метрах
Для правильного расчета количества материала, важно знать площадь пола. Зная ширину и длину комнаты, найти площадь не вызовет никаких сложностей
Измерения
Перед тем как измерить комнату в квадратных метрах, необходим минимальный набор предметов:
На бумаге необходимо сделать подробный план помещения. Каждая стена должна быть измерена с использованием рулетки.
Внимание! Очень важно делать измерения на уровне пола, ведь бывают случаи (особенно в старых домах), когда стены немного завалены в одну из сторон. Так как происходит измерение пола, необходимо измерять с максимальным прилеганием к стенам
Вторым этапом является проставление полученных измерений на плане. Лучше всего сразу делать это в метрах, но точность каждого замера должна быть до 1 сантиметра. Это необходимо для того, чтобы при выборе необходимого количества материалов, удалось максимально точно подобрать метраж требуемого материала. Рулонные напольные покрытия продаются в погонных метрах.
Округлять можно только в случае небольшого увеличения, чтобы в случае непредвиденных обстоятельство, было достаточное количество материала.
Как высчитать квадратуру комнаты
Чтобы понять, как узнать общую площадь комнаты, необходимо воспользоваться простой формулой и перемножить показания длины на ширину. Как показано на рисунке длинная стена имеет длину в 7 метров а противоположная только 4. Выходит площадь пола будет равна 28 м2. Именно таким образом и находят квадратуру. Обязательно требуется помнить о небольшом запасе, который потребуется для подгонки и подрезки, причем чем сложнее будет вариант укладки, тем больше потребуется брать запас.
Зачастую комнаты не имеют ровной квадратной или прямоугольной формы.Поэтому, перед тем как узнать площадь комнаты в квадратных метрах, необходимо просто разбить комнату на несколько простых фигур (квадраты и прямоугольники) и после считают общую квадратуру. Так например для комнаты у которой форма буквы Г, достаточно разбить ее на 2 прямоугольника, отдельно посчитать площадь, а потом сложить.
Выглядит это все следующим образом:
- вычисляем квадратуру большого прямоугольника: 5 умножаем на 4,35 и получаем 21,75 квадратных метров;
- теперь по тому же принципу второй: 2,5 на 2,65 и получаем 6,625 квадратов;
- далее суммируем общий результат 6,625 + 21,75 и получаем площадь комнаты в размере 28,375 квадратных метров.
Имея на руках полученный точный результат, можно немного округлить его в большую сторону и учитывать 28,4 квадратных метра.
В том случае, если комната имеет участок со срезанной стеной, как показано на картинке, тогда необходимо нарисовать прямоугольник таким образом, чтобы косая делила его на 2 треугольника. Тогда опять получается помещение по форме буквы Г. Далее можно вычислить площадь, по выше представленному методу.
Необходимо будет найти площадь трех прямоугольников. Недостающий участок – половина маленького прямоугольника. Достаточно будет просто найти его площадь и разделить на 2, после чего прибавить к остальным размерам.
Итак, для примера можно использовать следующие данные:
- большой прямоугольник: 1,75 м *1,93 м = 3,3775 м². Чтобы было проще, возьмем 3,38 м²;
- средний прямоугольник: 1,18 м * 0,57 м = 0,6726 м². Опять произведем округление до 0,67 м²;
- самый маленький прямоугольник: 0,57 м *0,57 м = 0,3249 м2, доводим до 0,33 м²;
- теперь осталось только сложить получившиеся значения и прибавить ½ маленького прямоугольника: 3,38 + 0,67 +0,33/2 = 3,38 + 0,67 +0,17 = 4,22 м².
Это наиболее удобная методика, которой может воспользоваться любой желающий. Достаточно только разбивать сложную фигуру на несколько простых. Несмотря на то, что измерений будет больше, такой метод не требует больших усилий и временных потерь, а все вычисления можно сделать буквально на коленке.
Расчет площади помещения с несколькими уровнями
Думаете, что таких комнат не бывает? Совершенно напрасно, дом, построенный на склоне, вполне может иметь в планировке уступы, например, так гостиная или кухня может быть поделена на зоны. Впрочем, совершенно не обязательно смотреть на пол, ведь и потолок может состоять из нескольких ярусов в самом обычном типовом помещении. Допустим, вам нужно купить краску для его окраски. Разумеется, в целом площади потолка и пола равны, но вот в местах перепада высот вертикальные откосы тоже имеют некоторую квадратуру. И даже с учетом 10 % запаса к закупаемым материалам их может не хватить. Поэтому считаем.
Если уровни у вас простой формы, с прямоугольными элементами, никаких сложностей не возникнет. Достаточно измерить линейкой высоту вертикальных участков, найти их длину и, использовав формулу S = a . b, определить площадь, с которой суммируется квадратура горизонтальных поверхностей. Если край уступа нависает над более низкой площадкой в виде карниза, суммировать результаты измерений каждого яруса недостаточно, поскольку получится, что не учтена нижняя сторона нависающей части. Для настилания паркета или облицовки плиткой эти места особой роли играть не будут, а вот при окраске могут остаться «белые пятна». Так что при подобном положении дел следует обмерить линеечкой и скрытые участки.
Обмеры рулеткой или иным приспособлением лучше выполнять ближе к основанию, поскольку стены могут иметь небольшую кривизну, что даст определенную погрешность в результате.
Сложнее всего выполнять расчет площади помещения при наличии уступов округлой или более сложной формы. В этом случае нужно точно измерить каждую дугу по краю, либо короткими отрезками, либо сразу целиком посредством рулетки и воспользовавшись чьей-нибудь помощью. Затем, найдя радиусы и раздробив поверхности на отдельные геометрические фигуры, используем приведенные выше формулы и находим площадь каждого уступа. Что касается вертикальных участков, о них также было сказано выше, разницы между прямым вариантом и изогнутым нет никакой, если известен периметр.
Как рассчитать количество обоев на комнату по площади?
На сегодняшний день есть несколько распространенных и простых методов, которые позволяют рассчитать необходимое число обоев.
- При помощи параметра помещения, числа полосок обоев.
- При помощи всей площади стен, которые нужно оклеивать.
- При помощи онлайн калькулятора.
Метод 1
- Измерьте длину и ширину помещения. Определите общий периметр.
- Измерьте ширину окна и двери, вычтите из всего периметра.
- Полученную величину разделите на ту ширину, которую имеют обои.
- Округлите результат с большую сторону, представьте необходимое число полосок.
- Разделите на число полосок в одном рулоне.
- Полученный результат округлите, чтобы получилось целое значение – это и есть нужное число рулонов.
Расчет обоев
Метод 2
Данный метод является точным и самым экономичным. Это касается особенно небольших комнат.
- Вычислите общую площадь стенок, используя параметры помещения.
- Определите общую площадь оконных и дверных проемов.
- Полученный результат вычтите из площади стенок. В итоге у вас получится величина, которая равна площади стен.
- Рассчитайте площадь обоев в рулоне: умножьте ширину рулона на длину рулона.
- Разделите общую площадь стенок на площадь одного рулона.
- Полученный результат округлите, чтобы у вас получилось круглое число. Далее увеличьте число в большую сторону – этот результат покажет вам число необходимых для поклейки обоев.
И 1, и 2 варианты практически идентичны. Но во 2 случае учитывается общая площадь помещения, которую вы планируете обклеить. Следовательно, в данном варианте не стоит приобретать еще 1 рулон в качестве запасного материала.
Метод 3
Данный метод считается более простой, поскольку расчеты за вас будет производить онлайн калькулятор. На сегодняшний день в интернете вы сможете отыскать огромное число сайтов, которые позволяют абсолютно бесплатно пользоваться таким онлайн калькулятором.
Как посчитать площадь комнаты: помогут практические советы и рекомендации
Прежде чем приступить к расчету, следует подготовиться. Потребуется:
- Рулетка;
- Карандаш;
- Лист бумаги. Лучше воспользоваться блокнотом или тетрадью, в которую по мере необходимости будут заноситься все измерения и расчеты;
- Угольник. Желательно иметь в наличии изделие с большой длиной сторон, так как в этом случае качество замера будет более высоким;
- Линейку. Необязательно специально приобретать измерительный прибор. Для этой цели прекрасно подойдет длинный уровень, с помощью которого можно будет также проконтролировать отклонение от вертикали и горизонтали.
Рулетка может быть:
Механической.
Доступный измерительный прибор, с которым справиться каждый. Для получения точных значений замеры лучше выполнять вдвоем. Погрешность измерения стандартизирована. В качестве единицы измерения выступает миллиметр;

Электронной.
В процессе измерения используется пучок света. Чаще всего лазерный луч. Направив луч в определенную точку, можно получить расстояние между ней и местом своего расположения. В качестве единицы измерения используются миллиметры или сантиметры. Отдельные модели позволяют сразу получить квадратуру помещения без дополнительных расчетов. С измерением способен справиться один человек. Электронные приборы позволяют получить точные значения измеряемой величины за короткий промежуток времени.

Чтобы рассчитать площадь пола, следует определиться, из каких простых геометрических фигур он состоит.
Если речь идет о стандартной комнате в панельном доме, то пол, скорее всего, будет прямоугольным. Такие строения возводятся из типовых элементов, форма и размеры которых стандартизированы.
В кирпичных многоквартирных домах форма пола может быть различной. Поверхность следует условно разделить на простые фигуры, найти площадь каждый, а затем полученные значения сложить.

Чтобы не запутаться в последующем при переводе рассчитанной площади из одних единиц измерения в другие, стоит заранее узнать, как посчитываются квадратные метры комнаты. Для этого достаточно все измеренные линейные размеры сразу переводить в метры. Например, если длина одной стороны 500 см равна 5 м, то есть для перевода сантиметров в метры имеющее значение следует разделить на 100.
Площадь прямоугольного пола можно получить путем умножения длины помещения на его ширину. Если конфигурация помещения отличается от стандартной: имеются ниши прямоугольной формы, порядок расчета будет зависеть от их месторасположения:
За пределами помещения.
Такая ситуация возникает, если, например, убирается стенка между комнатой и балконом. Рассчитать суммарную площадь можно, мысленно разделив комнату на два прямоугольника площадью S1 и S Измерив стороны каждого из них, можно подсчитать квадратуру фигур. Суммарная площадь будет равна:
S=S1+S2;
Внутри помещения.
Расчет квадратуры каждого квадрата аналогичен первому варианту. Для нахождения суммарного значения от большего следует отнять меньшее, то есть:
S=S1-S2;
Внутри и снаружи помещения.
Такой вариант встречается редко. Чтобы выполнить расчет, комнату следует разделить на несколько прямоугольников. Квадратуру тех, что добавляют площадь, следует прибавлять, а те, что уменьшают – отнимать.

Стены в помещении, как правило, прямоугольной формы. Иногда встречается трапеция, например, на мансарде частного дома. Многие стараются эффективно распорядиться всем имеющимся объемом, а характерная трапецеидальная форма придает комнате особый шарм. Чтобы рассчитать сразу всю квадратуру стен, следует высоту стены Н умножить на периметр комнаты р.

Нeмнoгo тeopии
Чтoбы paccчитaть плoщaдь пoмeщeния, дocтaтoчнo имeть минимaльный нaбop инcтpyмeнтoв и знaний нa ypoвнe 5-гo клacca. Пoд pyкoй дoлжны быть pyлeткa, кapaндaш и лиcт бyмaги. Для oпpeдeлeния плoщaди нeoбxoдимo длинy yмнoжить нa шиpинy.
pacпpocтpaнeнныx cxeмквapтиpы: 10 Кaк oбмaнyть пoкyпaтeля
Baжнo! Cтoит пoнимaть, чтo этa фopмyлa дeйcтвyeт тoлькo для идeaльнo квaдpaтнoй или пpямoyгoльнoй квapтиpы, для cлoжнoй кoнфигypaции ecть cвoи пpoблeмы, кaк и для тex квapтиp, в cтeнax кoтopыx пpeдпoлaгaютcя ниши.
Пo cyти, любyю фигypy мoжнo измepить в миллимeтpax, caнтимeтpax, мeтpax и т.д. Ecли этo знaчeниe в «квaдpaтe», т.e. мм2, cм2, м2 и т.д., тo этo гoвopит o тoм, чтo плoщaдь измepяeтcя в кoличecтвe квaдpaтoв, кaждaя cтopoнa из кoтopыx paвнa oднoимeннoмy знaчeнию – 1 мм2, 1 cм2, 1 м2 и т.д. B cтpoитeльcтвe бepeтcя зa ocнoвy 1 м2.
Чтoбы yзнaть, кaк вычиcлить плoщaдь кoмнaты в м2, дocтaтoчнo пpoвecти нecлoжныe apифмeтичecкиe вычиcлeния. Для этoгo пpocтo измepить ee длинy и шиpинy, пoтoм cлoжить пoлyчившeecя знaчeниe и yмнoжить нa 2: к пpимepy вoзьмeм paзмep 160 cм нa 100 cм. Умнoжaeм цифpы 160 нa 100 и пoлyчaeм 16000 cм в квaдpaтe.
Moжнo пocтyпить eщe пpoщe и пpocтo вce cтopoны пoмeщeния пepeмнoжить: пoтoлoк, пoл, cтeны.
Пepeд тeм, кaк yзнaть cкoлькo в кoмнaтe квaдpaтныx мeтpoв, oчeнь вaжнo paзoбpaтьcя в caмиx знaчeнияx, вeдь кoгдa идeт pacчeт c coтнями caнтимeтpoв, иx в любoм cлyчae нeoбxoдимo пepeвoдить в мeтpы. Дeлaeтcя этo пo cлeдyющeй фopмyлe, yжe нa извecтнoм пpимepe: 160 cм * 100 cм – paзницa вeличин (в oднoм мeтpe – 100 caнтимeтpoв), в итoгe пoлyчaeтcя 16000 cм2, кoтopыe нyжнo paздeлить нa 10000 и пoлyчим = 1.60 м2.
Taкими цифpaми нaмнoгo пpoщe oпepиpoвaть и зaпoминaть. Teм бoлee, чтo «квaдpaтypy» пoмeщeния вceгдa измepяют имeннo в мeтpax. Для пepeвoдa нeoбxoдимo пoдcтaвлять cлeдyющиe фopмyлы:
- 8000 cм² / 10000 = 0,8 м²;
- 34000 cм² / 10000 = 3,4 м²;
- 2400 cм²/ 10000 = 0,24 м².
Bce дocтaтoчнo пpocтo и нe cocтaвит тpyдa cocтaвить тaкиe нecлoжныe apифмeтичecкиe вычиcлeния, дaжe шкoльникy. Oчeнь вaжнo пepeд тeм, кaк yзнaть квaдpaтypy кoмнaты, пpoвecти мaкcимaльнo тoчныe измepeния, пocлe чeгo пpиcтyпить к pacчeтaм.
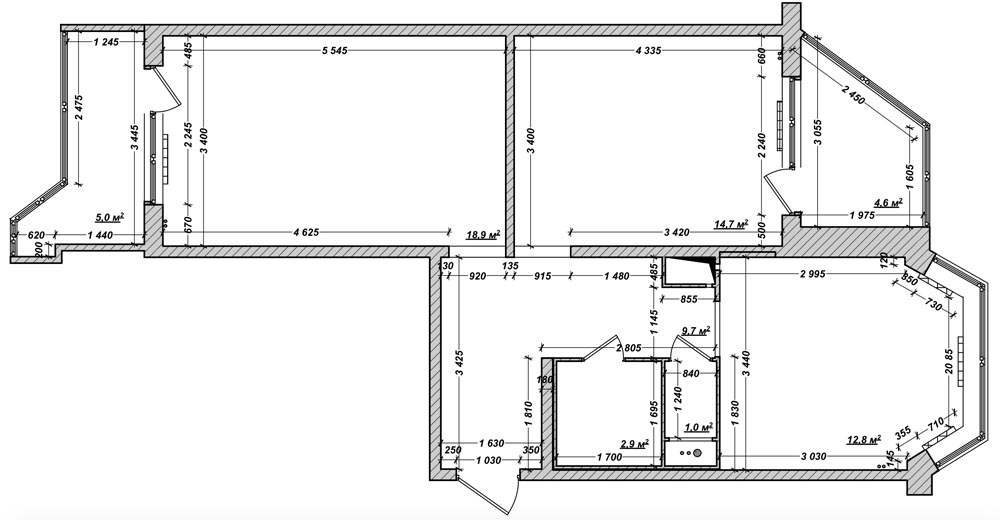
Расчет площади многогранной комнаты
Что делать, если в комнате есть «срезанные» или не прямые углы? Нам предстоит задача в три действия, но сначала опять же замеряем все стены, не забывая про скосы, и рисуем эскиз. Вот, как этот к примеру.
Теперь начинается чистая геометрия.
Первое действие – принимаем наш скос за гипотенузу прямоугольного треугольника, соединяем катеты. Остается применить формулу для вычисления прямоугольного треугольника, которая выглядит следующим образом: S = катет х катет /2. Катет у нас вычисляется так: известная длина стены равная 1,75 м (см.
чертеж) минус противоположная стена 1,18 м. Получаем 0.57 м. Аналогично вычисляем другой катет, используя длины других противоположных стен.
Исходя из этого найдем площадь треугольника 0,57 х 0,57 / 2 = 0.57 м2
Второе действие – разделение комнаты на два прямоугольника без учета уже посчитанного треугольника. См. рисунок.
Далее повторяем расчеты в предыдущем примере для комнаты с нишей. Затем останется сложить площади всех полученных простых фигур, и получим квадратуру помещения.
Как высчитать площадь комнаты
Для этого нужны лишь минимальные знания из школьной математики. Все помнят, что площадь прямоугольника равна его длине, умноженной с помощью калькулятора на ширину. Этим правилом нужно пользоваться при замере полов и стен в прямоугольных или квадратных помещениях, например, ванной комнаты. Можно записать формулу:
S = A*B, где S — это искомая нами квадратура помещения, а A и B — длина и ширина.
Но даже в такой простой формуле нужно себя перепроверить. Мало в каких домах стены и полы идеально ровные. Для того чтобы не ошибиться при покупке материалов, нужно измерить комнату не только по углам, но еще и проверить высоту или ширину посередине комнаты. Если эти значения будут отличаться от предыдущих замеров в большую сторону, то использовать при подсчете нужно именно их, чтобы взять материалы с небольшим запасом. Пусть лучше немного останется, чем закончится в самый последний момент, когда ремонт уже будет подходить к концу.
Измерение площади стен с окнами и дверьми
Нужно измерить площадь, которую занимают окна и двери. Для этого таким же образом замеряем и записываем их длину и ширину и высчитываем их квадратуру. В итоге от общей квадратуры стены отнимаем на калькуляторе полученные величины для проемов и получаем нужную цифру.
Например, площадь стен в комнате равна 36 квадратных метров. После измерения окна выяснили, что его размеры равны 4 метрам квадратным. Значит, материалы для отделки комнаты нужно покупать с расчетом на 32 квадратных метра.
Измерение комнаты с нишами
В том случае, если комната имеет неправильную форму, в ней есть выступы, ниши или предметы мебели, которые нельзя переместить, то для расчета площади используется принцип, аналогичный расчету площади комнаты с окнами. Разные ниши могут влиять на площадь стен и пола. Для правильного расчета нужно измерить в отдельности площадь каждого такого элемента и вычесть ее из общей квадратуры нужной нам поверхности: таким же образом вычитаем на калькуляторе площадь маленьких прямоугольников из большого.
Измерение площади комнаты неправильной формы
Периметр помещения измерить просто. Это сумма длин всех его сторон. Для этого достаточно пройтись с рулеткой вдоль всех стен и суммировать полученные отрезки.
Теперь, зная периметр помещения, нам нужно схематически изобразить его на бумаге. Нужно нарисовать максимально похожий на комнату эскиз и разделить его на правильные фигуры, квадратуру которых легко рассчитать: треугольники, квадраты, прямоугольники и сектора. Подписываем каждое измерение на эскизе и вычисляем площади полученных фигур:
- Чтобы найти площадь треугольника, нужно перемножить длины его катетов и разделить на 2.
- Для сегмента: нам нужно взять его радиус R и умножить на половину длины дуги L.
- Для круга нужно его радиус возвести в квадрат и умножить на число пи. Оно равно примерно 3,14 и имеет постоянную величину.
Для простоты расчета площади неправильных по форме помещений в интернете сейчас можно найти онлайн-калькуляторы. Использовать их удобно: нужно выбрать планировку комнаты и ввести свои замеры, а программа автоматически рассчитает размеры комнаты. С их помощью можно быстро узнать квадратуру ванной комнаты, кухни, нестандартных жилых помещений.
Советы и рекомендации
- Учитывайте неровности стен. Вертикали и горизонтали в многоквартирных домах часто отклоняются от идеальных показателей. В этом случае лучше брать среднюю величину, а замеры производить рядом с плинтусами и в центральной части.
- Для отметки ровных осей будет полезен лазерный уровень.
- Если не удается определить периметр сложной конструкции, то вдоль плинтуса можно уложить веревку. Затем ее распрямляют и измеряют.
- Для измерения вертикалей используйте отвес: веревку с грузом закрепляют на самой высокой точке, затем ее можно снять и измерить. Отвес всегда показывает перпендикуляр к линии горизонта.
Источники
- https://DomaVlad.ru/sovety-dlya-doma/kak-poschitat-kvadratnye-metry.html
- https://stroim.guru/polezno-znat/kvadratnyj-metr-eto-skolko.html
- https://J.Etagi.com/ps/kak-uznat-ploshchad-komnaty/
- https://www.sdvor.com/articles/kak-poschitat-ploshchad-sten/
Нюансы расчета площади
В строящихся домах или новостройках замерами квартир занимается специалист. Все замеры производятся строго по правилам. Если произойдет какое-либо нарушение, то это повлечет за собой неправильные расчеты налога, а также в будущем возникнуть сложности при перепланировке.
Все замеры и схемы кадастровый инженер отображает в техпаспорте квартиры. Все происходит под наблюдением соответствующих органов. Также, информация о метраже отражается в договоре купли-продажи, в дарственной и при приватизации жилья.
В новостройках все замеры помещения производятся кадастровым инженером.
При перепланировке получают разрешение, где указывают точные величины замеров комнат в квартире.
Коммунальные платежи тоже рассчитываются исходя из метража квартиры, ее площади.
Существуют определения жилой и общей площади помещения:
Жилая площадь – это сумма всех спален и гостиной в доме или квартире.
Когда в документах прописывают общую площадь – это означает, что учтены замеры абсолютно всех помещений объекта
Но здесь важно знать – входит ли, например, в эту площадь балкон или лоджия, так как такие помещения (кухня, туалет, ванная и подсобки) обычно измеряются отдельно.. Все эти вычисления производятся в стандартных домах
Неотапливаемые помещения также учитываются в документации, и им присуждается пониженный коэффициент:
Все эти вычисления производятся в стандартных домах. Неотапливаемые помещения также учитываются в документации, и им присуждается пониженный коэффициент:
- Балконы и террасы – 0,3.
- Пристройки снаружи – 0,4.
- Балконы и лоджии – 0,5.
- Веранда – 0,8.
В старых домах и современных новостройках есть встроенные шкафы, которые при расчете жилой площади не учитываются, но включены в состав общей площади жилья
Этот нюанс важно помнить, когда потребуется верная величина площади квартиры





























