Качели в виде скамьи или дивана с рамой из металла
Данный тип качелей распространен среди производителей – сегодня на рынке вы найдете большое количество готовых собранных моделей данного типа. Их отличает практичность и относительная дешевизна. Такие качели подходят для совместных посиделок вечером после трудового дня или же на выходных с детьми и близкими.
Сварные качели для дачи
Перед тем, как покупать материалы и приступать к самостоятельному изготовлению железных качелей, ознакомьтесь с особенностями конструкции:
- данный тип металлических качелей для дачи может быть как переносным, так и стационарным;
- фундамента переносной конструкции не требуется – опорой является квадрат у основания. В случае, если вы решите делать стационарные качели, то рекомендуем иметь в виду столбчатый фундамент;
- к таким конструкциям зачастую делают навес – это может быть как поликарбонатная крыша, так и натянутый тент.
Материалы и инструменты
Чтобы сделать качели из профильной трубы своими руками вам понадобится целый список инструментов и материалов:
- Круглая профильная труба для каркаса диаметром 20мм, 14170 мм (возьмите с запасом на метр-два больше);
- 4 стальных уголка;
- 2 стальные дуги, каждая длиной по 250 мм и с диаметром в 15 мм;
- 2 деревянных полотна;
- трос, цепь или любой другой подвес, который сможет выдержать нагрузку до 250-300 килограмм;
- сварочный аппарат;
- плоскогубцы;
- молоток;
- тиски;
- болгарка или ножовка по металлу;
- строительный уровень;
- рулетка;
- специальная краска по металлу от коррозии;
- рым-шурупы 5х80мм, 4 штуки.
- такелажная скоба М5, 6 штук;
- болт М6х30, 4 штуки;
- гайка М6, 4 штуки;
- пружинная шайба М6, 4 штуки.
Пошаговая инструкция
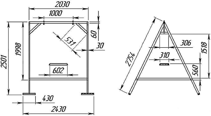
| Нарезка деталей из профильных труб для железных уличных качелей. Для боковых стоек понадобятся отрезки по 2500 мм, 4 штуки. На перекладину понадобится отрез трубы, длиной в 2100 мм. | |
| Срезаем край трубы под 30 градусов на конце, после чего с помощью сварочного аппарата свариваем их в равнобедренный треугольник. | |
| Отмеряем 2000 мм от вершины стоек и привариваем горизонтальную перекладину длиной 1035 мм для укрепления рамы. Смотрите чертеж садовых качелей из металла, который мы сделали для вас своими руками. | |
| Привариваем горизонтальную перекладину на концах вертикальных стоек. После на нее будет крепиться сиденье. Расстояние между А-образными стойками – 2000 мм, перекладина выступает на 50 мм с каждой стороны. | |
| Займемся созданием скамейки качели из профильной трубы своими руками. Берем несколько брусков 30х30х6000 мм и укорачиваем их. Должны получиться отрезки 1500 мм в количестве 24 шт Зачищаем их с помощью наждачки или станка. Либо можно взять брус 100х100 и подогнать под необходимые размеры. Не обязательно выпиливать 30х30, можно использовать и 20х50 и 30х70 и т.д. | |
| Наносим лакокрасочное покрытие на поверхность, чтобы предотвратить гниение древесины. | |
| Делаем каркас из трубы 15 мм в диаметре. Свариваем отрезки воедино и прикрепляем бруски с помощью болтов. Расстояние между ними – 20-25мм. По краям привариваем рым гайки для крепления цепи (две с одной стороны, две с другой). С расстоянием между брусками также можно экспериментировать (все зависит от их размера). Более подробно на чертеже качелей из профильной трубы. | |
| Крепим сиденье к вертикальным стойкам каркаса качелей из металла. Просверливаем в перекладине сквозные отверстия для болтов с рым гайками. Продеваем их и закручиваем. Соединяем карабины со всеми рым гайками и прикрепляем цепь. | |
| Выкапываем 4 ямы глубиной 450мм. Для этого используем ручной железный бур. | |
| Замешиваем бетон. В емкость добавляем цемент, песок и воду в пропорциях 1:2:3. Лучше всего использовать цемент, маркированный как М400. | |
| На дно засыпаем подушку из песка 100мм, после устанавливаем стойки в ямы. Забрасываем несколько больших камней для устойчивости конструкции, после чего заливаем все бетоном. Ждем в течение 3-4 дней пока все высохнет. Конструкция готова |
Как сделать детские качели и для отдыха из покрышки: чертежи, размеры, фото
Из покрышек вы можете изготовить множество качелей как для взрослых, так и для детей.
Вариант 1
Сделайте отличную раскачивающую качелю, используя крепкую шину маленького размера. Выполните следующие действия:
- Выберите покрышку. Промойте ее тщательно.
- Используя рым-болты, изготовьте с боковой части плоской стороны крепление, куда вы будете прикреплять цепь или веревку. Можете сделать 4 либо 3 опоры. В первом варианте по 2 болта вкрутите с 2 сторон колеса, чтобы они находились на равных расстояниях. В другом варианте вкрутите под углами 120 градусов болты, чтобы образовался у вас треугольник с равными сторонами. Просчитайте тщательно места, где будут находиться крепления, чтобы качелька не перекашивалась.
- Тщательно закрепите веревки либо цепь к основе.
- Присоедините подвесы к крючкам, которые находятся на колесе. Укрепите качелю таким образом, чтобы она была параллельно земле.
Вариант 2
Данная конструкция считается более сложной, но она обязательно украсит детскую площадку. Кроме того, если у вас будет в наличии острый нож, вы без проблем справитесь с работой. Изготовьте качели, выполнив такие манипуляции:
- Срежьте при помощи ножа верхний край покрышки. Оставьте обода целыми.
- Сверху «ручек» при помощи болтов закрепите тщательно скобы.
- К данным скобам прикрепите веревку или цепочку, завязав узлы.
- Обрежьте концы.
- Проверьте сиденье, чтобы оно было прочное.

Готовый результат
Вариант 3
Для следующей качели вам придется выполнить такие процессы:
- Разрежьте покрышку на 2 равные части.
- К 1 половинке на срез прикрутите при помощи саморезов доску, отшлифовав ее заранее.
- С 2 сторон доски проделайте по 2 отверстия, вденьте в эти отверстия толстую веревку – таким образом у вас получатся ручки.
- Покрасьте конструкцию яркой краской.

Макеты

Создаем качелю
Самодельные качели из различных материалов
Перед началом работы следует определиться с основным материалом, вспомогательными инструментами.

Качели можно сделать практически из любого прочного материала, даже из шин. Но мы представим список наиболее оптимальных расходников: древесина, металл и трубы.


Качели из древесины
Дерево – прочное и наиболее доступное сырье, с которым справится даже новичок. Деревянные качели отлично впишутся в любой ландшафт и будут практичны в эксплуатации.

Положительные стороны использования данным материалом:
- экологичностью;
- гармонично смотрятся в саду;
- доступная цена.

Среди отрицательных сторон, стоит отметить следующие:
- древесина плохо переносит погодные условия (снег, дождь, палящее солнце, резкие перепады температуры);
- подвержена образованию грибка и плесени;
- свойствен процесс гниения.


Например, сосна и лиственница меньше остальных подвержены образованию трещин и не привлекают внимание насекомых. Отличаются долголетней службой

Насчёт дуба – наряду со значительными плюсами (прочность, массивность, легкость в эксплуатации), он имеет большой минус – высокая цена.

Опытные строители рекомендуют липу. Основываясь на привлекательности и надёжности сырья. Но отличается плохой защитой от резких перепадов температуры и холода.

Качели из металла
Металл – сырьё, которое отличается своей доброкачественностью, устойчивостью к природным и другим факторам. По сравнению с древесиной, металл прослужит дольше.

Если вы – новичок, вам придётся изрядно постараться, чтобы сделать качественную и хорошую конструкцию. Работа с таким сырьём вызывает затруднения.

Преимущества:
- долгие годы службы;
- надёжность и ударостойкость;
- способны выдержать большой вес;
- кованые качели дополнять ландшафт.

Недостатки:
- при сильном раскачивании, переносная модель может упасть;
- поверхность сырья следует покрыть антикоррозийным средством.

В любом случаем металл – это такой материал, который, при качественной сборке, будет служить долгие годы. Он находится в общем доступе и по приятной цене.





Качели из профильной трубы
Многие эксперты утверждают, что такой материал уж точно подойдёт для новичков. И правда, процесс конструирования займёт немного времени и сил.

Изделия из профильной трубы будет привлекать свои видом, не потребует дополнительных креплений. Отличается лёгким весом и простотой в использовании.

Плюсы данного материала:
- не деформируется после удара;
- низкая стоимость;
- высокая прочность;
- допустимая нагрузка более 100 кг;
- устойчивость к погодным условиям и солёной воде.

Минусы использования:
- не поддаётся сгибанию вручную, требует наличие специального станка;
- легко поддаётся образованию ржавчины;
- придётся потратиться на процедуру оцинковывания, что значительно увеличит стоимость конструкции.

Сегодня существуют самые различные виды сечения: овальные, квадратные, прямоугольные трубы. Каждый используется для определённой цели.

Округлые трубы рекомендуется использовать для дугообразных конструкций (арки, ручки и сидения).

Квадратные и прямоугольные сечения применимы для создания вертикальных стоек, перекладин. А трубы с плоским сечением подходят в качестве горизонтальных распорок.

Когда вы выбрали оптимальный материал изготовления, мы предлагаем простые и практичные планы по изготовлению.

Аксессуары
Поклонники расслабления на свежем воздухе обязательно оценят чехол для садовых качелей. Он защищает от атмосферных явлений (ветра, осадков) и насекомых, создает притенение, украшает конструкцию. Навес легко очищать от загрязнений и транспортировать в сложенном виде.

В продаже представлены чехлы, закрывающие верхние и боковые части качелей
При покупке обращайте внимание на размер изделия – полноценный чехол-тент должен хорошо прилегать к сооружению. В противном случае грязь, листья, будут забиваться в зазоры, а дождь проникать внутрь
Рекомендуемый материал – водоотталкивающий полиэстер, полиэфир, ПВХ.

По наличию осей подвижности
Обязательное условие любого элемента декора – вместительность и проходимость. Качели для дачи не должны мешать хозяевам, а также обязаны быть полностью безопасными для малышей. Поэтому придумано несколько видов конструкций данного типа:
- Одна ось. Наиболее простая сборка, легкая даже для детей, качающаяся только вперед-назад. Но, если школьники орудуют веревкой и крепкой веткой, то взрослый сможет сварить железного зверя. Данные качели можно обезопасить специально спинкой и отделениями для маленьких детских ножек.
- 2 оси. Любимый вид сооружения для детей школьного и дошкольного возраста, качающаяся вперед-назад, а также вправо-влево.
- С одной подвесной точкой. Эта конструкция висит на 1 веревке, что позволяет ей вращаться в разные стороны. Подходит для домашнего украшения или предмета отдыха – подвесное кресло выглядит довольно красиво и уютно.
Садовые кованые качели своими руками из металла
Качели этого типа выполняются преимущественно для установки на территориях загородных домов. Для создания данных изделий потребуются навыки обращения со сварочным аппаратом и металлом или вы можете нанять помощника. В этом случае качели получаются более долговечными и мощными, чем другие варианты металлических конструкций. Кроме этого, вы получаете оригинальное изделие, которое сможет стать интересным декоративным дополнением к ландшафту и экстерьеру дома.
Свежие статьи о саде и огороде
Эустома посев семян на рассаду
Шлюмбергера уход в домашних условиях фото
Шток роза многолетняя посадка и уход фото
Металлические изделия, изготовленные методом ковки, имеют высокую стоимость. Но она оправдана отличными декоративными характеристиками.
Как сделать деревянные качели своими руками
Чтобы найти лучший в сборке вариант, необходимо более детально ознакомиться с пошаговой инструкцией садовых качелей из дерева, сделанных своими руками. Только грамотный подход даст возможность создать красивое и комфортное в эксплуатации устройство для качания и детей, и взрослых.
Как сделать простые деревянные качели своими руками
Для монтажа конструкции понадобятся такие расходные материалы:
- бревно длиной 3 м и диаметром 125 мм;
- сизальский трос (7 м);
- шпагат;
- 2 болта, оснащенных кольцами;
- 2 крепления для быстрого соединения – карабина;
- 2 бревна диаметром 85 мм;
- доска длиной 600 мм (сечение 200×50 мм);
- 2 шайбы квадратной формы;
- 2 гайки.
Нужно разместить бревно между двумя ветками для надежности. Можно зафиксировать его посредством веревки
Важно, чтобы третья часть длины была на вылете (1000 мм). Монтируют бревно на высоте 2600 мм от земли
Закрепить веревки. Концы сизальского троса диаметром 13 мм необходимо обвязать при помощи шпагата, иначе волокна будут распускаться. Веревки крепят к ветке либо бревну, используя петлю с тремя узлами. Завязывать нужно, отступив от торца бревна 1 м, интервал между веревками должен составлять 50 см.
Сделать сиденье из небольших бревен. Длина их должна быть 70 см, а диаметр 8,5 см. Сначала следует запустить веревки между ними, обмотать вокруг каждого, а потом вывести и завязать на 3 узла.
Если нужно сделать качели с гибким сиденьем, то необходимо с двух сторон предусмотреть по карабину. Их фиксируют к веревкам также при помощи тройного узла. Такой прием дает возможность в любой момент произвести замену сиденья.
Изготовить сиденье из доски просто. С каждого края просверливают по отверстию диаметром 10 мм и монтируют в них болты с кольцами (длина 200 мм, в диаметре 10 мм). Сверху и под сиденьем устанавливают шайбы квадратной формы, гайки монтируют снизу. Такой вариант деревянных подвесных качелей больше актуален для детей подросткового возраста, а для малышей больше подойдет конструкция с гибким сиденьем.
Как сделать своими руками из дерева качели с крышей
Расходные материалы для сооружения данной конструкции:
- 4 бруса для боковых опор длиной 3 м (100×100 мм);
- брус для верхней перекладины длиной 2,5 м (80×80 см);
- боковая стяжка из перекладины 100x30x600 мм.
Алгоритм работ:
- Путем применения болгарки следует отрезать стойки нужной длины и соединить их в виде буквы А. Для лучшей устойчивости их соединяют при помощи боковых стяжек, где нижние монтируют на высоте 60 см от земли, а верхние — на расстоянии 20 см.
- Опоры устанавливают в вырытые ямки, глубина которых 80 см. На дно каждой нужно уложить песчано-щебеночный слой толщиной 20 см. При серьезной нагрузке опоры бетонируют.
- Посредством перекладины следует соединить верхние концы опор. Все делать необходимо по уровню. Монтаж производят при помощи спиц диаметром 10 мм, их устанавливают в точках скрещивания перекладин через отверстия. С внутренней и наружной стороны следует на спицы закрутить гайки с шайбами, после чего стянуть.
- Скамейку можно сделать из поддонов. Их подвешивают на канаты, предварительно просверлив по краям отверстия под них. При необходимости спинку монтируют при помощи брусьев.
- Навес делают следующим образом: монтируют 2 треугольника из бруса с двух сторон перекладины (верхней), потом к ней крепят доски и накидывают поверх плотную ткань, листы поликарбоната, брезент.
Как сделать своими руками из дерева качели для двоих
Двойная уличная конструкция предусматривает создание опоры из брусьев в виде буквы А. При помощи перекладины нужно состыковать 2 такие опоры, и уже к ней зафиксировать 2 сиденья посредством веревок. Их можно изготовить из подручных средств, приобрести уже в готовом варианте.

Как сделать своими руками раскладные деревянные качели
Чтобы изготовить конструкцию, которую можно использовать в двух вариантах, необходимо, как и в предыдущем случае, собрать силовой каркас в виде буквы А и установить на постоянное место.
Из доски 150×50 мм необходимо выполнить несущий «скелет» будущей скамьи размером 2000×1000 мм. Вместо цепей хорошо применять жесткие деревянные тяги. Все элементы каркаса собирают методом «в полдерева».

Для настила используют бруски 50×75 мм. Для создания спинки нужно соединить элемент настила с дополнительными брусками. В завершении устанавливают растяжки и укосины, монтируют подлокотники, регулируют высоту подвеса скамейки.

Видео изготовления качели из дерева своими руками.
Контакт с почвой
Каркас может быть как переносным, так и стационарным, но обычно хозяева пытаются как можно надежнее закрепить раму на плоскости.

Для работ могут понадобиться определенные чертежи и точные замеры всех заготовок. Из-за маленького веса готовой конструкции она не отличается особой устойчивостью, поэтому основные опоры плотно прикрепляют к асфальту или бетонируют столбы в землю.










Такими манипуляциями конструкции придается надежность и более сильная фиксация в момент раскачивания. А также продумывают предохранители на перекладине от незапланированного переворачивания сиденья через нее при интенсивной скорости.

Выбор конфигурации дачных качелей
Как уже говорилось, необходимо определиться со схемой – А-образная, Л-образная (без перемычек), П-образная, Г-образная (с консольным расположением балки для подвеса сидения). После этого определяется положение опор – на грунте или в нем. В первом случае необходимо соединить стойки в жесткую призматическую конструкцию на уровне земли, во втором – увеличить длину опор на величину заглубления (обычно 50…80 см).
![]()
При бетонировании или закапывании опор в землю лучше добавить к ним поперечины, как показано на схеме выше – это увеличит устойчивость качели для сада своими руками.
После выбора всех необходимых элементов конструкции проводятся следующие работы:
- нарезка металлопроката на куски нужной длины;
- сварка или скрепление фитингами на болтах стоек;
- сборка конструкции со всеми поперечинами с помощью сварки или болтовых соединений;
- установка изделия на грунте или в грунте (с последующим бетонированием опор или засыпкой и трамбовкой);
- монтаж подшипников или петель для подвеса сидения (это может быть сделано на стадии общей сборки качели садовой своими руками);
- подвес сидения и проверка работоспособности изделия;
- окраска (иной вид покрытия) всех деталей антикоррозионной краской.
Если качели из металла имеют навес или другие дополнительные элементы, то они монтируются на стадии общей сборки. Для навеса последним этапом работ будет установка покрытия (из поликарбоната, дерева или других материалов).
Детские качели для дачи своими руками из металла
Если вы планируете сделать садовые качели своими руками из металла для детей, стоит ознакомиться с подобранными нами интересными вариантами с пошаговым описанием.
Одиночные качели из металла своими руками
В первом нашем мастер-классе мы сделаем своими руками из металла детские уличные качели для одного ребёнка.
Одиночные садовые качели из металла для детей своими руками: чертежи и размеры
Самое главное в детских качелях – их надёжность, поэтому в переносных моделях желательно сделать жёсткую нижнюю раму либо установить их стационарно. В работе можно воспользоваться нашими чертежами с размерами или нарисовать собственный эскиз.
Пошаговая инструкция
Предлагаем вместе с нами сделать своими руками простые детские качели из профильной трубы, для которых нам понадобятся следующие материалы и инструменты:
- 4 трубы длиной 180 см и сечением 40×20 мм, толщина стенки 2 мм;
- 3 трубы для перемычек длиной 70 см;
- аппарат для сварки;
- болгарка;
- шлифмашинка;
- краска, кисточка.
| Иллюстрация | Описание работы |
Для изготовления А-образного каркаса к каждой паре стоек длиной 180 см приварить перемычки
Сделать основу под сиденье размером 35×40 см
Приварить к сиденью с обеих сторон две направляющие по центру каркаса, перила и заднюю спинку на высоте 25 см с опорой
Приварить верхнюю планку между А-образными стойками, к ней с каждой стороны приварить по два уголка для крепления стоек сиденья
К верхней части направляющих от сиденья приварить трубки
Закрепить перемычки к нижней части спереди и сзади несущих стоек
Смонтировать с помощью сварки по бокам на расстоянии 61 см от низа конструкции распорки, которые увеличат её надёжность и жёсткость
Закрепить направляющие сиденья в петлях, отверстия предварительно промазать смазкой, закрепить в них шайбы из пластика, затем стянуть болтами.
Смазкой также нужно предварительно промазать стенки трубок изнутри, чтобы не возникало скрежета во время катания
Зачистить все элементы, особенно сварные швы, сначала зачистным кругом, затем лепестковым
Обезжирить, покрасить все поверхности и закрепить деревянный настил
Более подробно весь процесс можно посмотреть на видео:
Статья по теме:
Садовые качели своими руками: виды качелей и фото, варианты конструкций, качели из разных материалов, характеристики, безопасность, порядок обустройства, что нужно для создания качелей, инструменты и оборудование — в нашей публикации.
Качели своими руками из металла для нескольких детей
Качели для нескольких детей могут иметь одно общее сиденье. Второй вариант – закрепить сидушки для каждого ребёнка на расстоянии друг от друга.
Чертежи качелей из металла для нескольких детей
Существует несколько вариантов чертежей изготовления качелей для двух деток. Можно сделать своими руками конструкцию буквой «П» из металла со скамейкой и дополнительно закрепить ребра жёсткости по обеим сторонам, либо это могут быть А-образные стойки с усилением средней части.
Пошаговая инструкция
Если нет сварочного аппарата, можно закрепить элементы качелей на П-образном каркасе на болтах. Для работы нам понадобится металлопрофиль квадратного сечения со стороной 60 мм и длиной 3000 мм. Поскольку мы будем делать стационарную конструкцию, 50 см уйдёт в землю.
Высота качели получится 2 м, длина горизонтальной перемычки зависит от того, сколько сидений планируется на ней разместить. Один каркас выдержит три посадочных места.
- Предварительно, при помощи специального сверла, высверлить отверстия для крепления.
- Изнутри укрепить отверстия толстыми пластинами из металла.
- Закрепить перекладину на стойках при помощи болтов с контргайками, а также шайбами Гровера.
- Закрепить сидушку на подвесах.
- Забетонировать стойки.
На металлопрофиле длиной 3 м вполне комфортно можно закрепить 2 посадочных места ФОТО: vseprotruby.ru
Статья по теме:
Детские уличные качели для дачи: типы конструкций и используемые материалы, элементы качелей, выбор готовых изделий, самостоятельное изготовление, нюансы установки — читайте в публикации.
Делам сиденье для садовых качелей
Начинаем с каркаса
Из доски 100х50 мм нарежьте восемь прямоугольных заготовок длиной 500 мм — из них будут изготовлены задние стойки (4 шт.) и опоры сиденья (4 шт.).
Используя предложенные ниже чертежи, перенесите на заготовки криволинейные контуры и выпилите необходимые детали. С этой задачей отлично справляется электролобзик. Подготовив первую деталь, используйте ее как шаблон для изготовления трех последующих.
Опоры сиденья — чертеж
Задние стойки — чертеж
Для сборки опор и задних стоек используйте болты с шайбами, располагая их так, как показано на схеме. Для точного позиционирования отверстий лучше сначала совместить две детали и зафиксировать их струбцинами, после этого еще раз проверить точность подгонки и уже потом засверливаться.
Из дюймовки шириной 100 мм вырежьте переднюю царгу длиной 1525 мм и прикрутите ее 75-миллиметровыми саморезами к торцам опорных сборок, как показано на схеме. Сначала зафиксируйте царгу на двух крайних опорах, затем — прикрутите две центральные сборки. Чтобы каркас был собран без перекосов, работайте на ровной поверхности и постоянно проверяйте точность позиционирования всех деталей угольником.
Делаем спинку и сиденье
Когда каркас собран, переходят к сиденью и спинке. Из дюймовой доски толщиной 75 мм нарежьте шесть реек длиной 1525 мм — это будут планки сиденья. Их прикручивают 50-мм саморезами через предварительно просверленные отверстия. Планки устанавливают с небольшими отступами (½ дюйма)
Для садовой мебели это очень важно — зазоры препятствуют скоплению дождевой воды на горизонтальных поверхностях
По аналогичной схеме нарежьте и соберите планки спинки
Но обратите внимание, рейки здесь немного короче: их длина составляет 1450 мм. Их также изготавливают в количестве 6 штук: пять планок прикручивают вертикально, а последнюю — горизонтально на торцах опорных конструкций
Не ленитесь делать предварительные отверстия под крепеж — это позволит избежать досадных ситуаций, как на фото. Чтобы ускорить этот не самый увлекательный процесс, делайте отверстия серийно: собирайте в стопку сразу несколько досок, фиксируйте «пакет» струбцинами и просверливайте все рейки за один проход.
Собираем боковину
Из доски 50х100 мм (та же, что использовалась для опорных сборок) вырежьте две прямоугольные заготовки для передних стоек. Далее отпилите торцы под углом 12,5 ° в одном направлении, как показано на схеме.
Прикрепите опоры подлокотника двумя болтами с шайбами, как на фото. Для этого сначала прижмите стойки струбцинами к боковине, проверьте точность подгонки и уже потом засверливайтесь.
Подготовьте две доски 50х100х570 мм. Перенесите на заготовку контур подлокотника и аккуратно вырежьте деталь, оставляя небольшой припуск для последующей обработки кромки. Прикрутите подлокотник 75-мм саморезами к торцу передней опоры и двумя саморезами через задние стойки.
Наверняка многие уже успели заметить, что конструкция этой качели очень похожа садовое кресло адирондак. Больше об этом культовом кресле и его изготовлении своими руками — читайте здесь.
Просверлите отверстия под болты с проушиной, как показано на фото.
Сиденье качели собрано. Но это только половина работы. Теперь нужно подумать, на какой конструкции лучше подвесить качели.
Креативные идеи
Большинство людей предпочитают делать классические садовые качели своими руками из металла либо деревянных брусьев. Если конструкция создается для детей, стоит продумать дизайн с учетом их увлечений. Для мальчиков актуальна тематика самолетов, машинок и прочих транспортных средств, девочкам понравятся украшения в виде лент, цветов.
Благодаря широкому разнообразию идей получится изготовить красивые качели с оригинальным внешним видом. Для производства простого сиденья можно использовать обычную автомобильную шину. При помощи подвесов покрышка закрепляется к ветке дерева либо готовой опоре. В результате получается стильное украшение садового участка.
Огромной популярностью пользуются необычные качели из палетов. Встречаются одноместные модели и большие лежаки, представляющие собой полноценные места для отдыха. Удобные сиденья получаются из деревянных кругов, боксерских груш, мячиков для фитнеса
Важно помнить о том, что амплитуда движения в этом случае будет довольно высокой
Удобная детская модель изготавливается из обруча, подвешенного на цепях. Сидушка обматывается поролоном или другим мягким наполнителем, перевязывается веревками. Большие сиденья комфортны для сна, отдыха, лежания. Конструкции отличаются эффектным внешним видом, не имеют ограничений по возрасту.
Качели-кровать выполняют декоративную функцию, имеют широкий функционал. Модель используют для отдыха, сна, разнообразных занятий, игр на свежем воздухе. Подвесные конструкции фиксируют между стоек или деревьев, изделия с каркасом свободно перемещаются по территории сада или дачного участка.




































